Продажа 1-комнатной квартиры, Новосибирск, Красноводская ул., 7, Новосибирская область
- Регион
- Новосибирская область
| Адрес | Новосибирск, Красноводская ул., 7Объект на карте |
- Метро
- Золотая Нива
- Тип дома
- Деревянный
- Этаж
- 1 этаж в 1-этажном доме
- Кол-во комнат
- 1
- Общая площадь
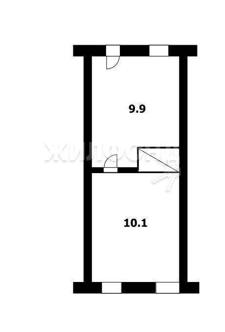
- 19.50 м2
- Жилая площадь
- 10.00 м2
- Площадь кухни
- 8.00 м2
- Дата обновления
- 13.05.2026
- Дата размещения
- 13.12.2025
1 комн. квартира по ул. Красноводская. Общей площадью: 19.50 кв. м.
В продаже квартира на земле в многоквартирном доме.
В квартире сделан косметический ремонт, стены и потолок выровнены гипсокартоном, заменена проводка, установлены пластиковые окна, есть погреб.
Отопление печное, твёрдым топливом.
Снаружи дом отделан сайдингом.
На земельном участке (4 сотки) свой биотуалет, уличный погреб, постройки: баня, теплица, сарай.
С участка открывается панорамный вид на противоположный склон балки.
Дом расположен в черте города, в пяти минутах ходьбы от остановки и магазина.
ВОЗМОЖНА ПОКУПКА В РАССРОЧКУ!
Рядом с объектом находятся:
1 продуктовый магазин.
Возможен обмен на вашу недвижимость. Возможна продажа в рассрочку.
При звонке, пожалуйста, сообщите номер варианта -
JV001054176293
В продаже квартира на земле в многоквартирном доме.
В квартире сделан косметический ремонт, стены и потолок выровнены гипсокартоном, заменена проводка, установлены пластиковые окна, есть погреб.
Отопление печное, твёрдым топливом.
Снаружи дом отделан сайдингом.
На земельном участке (4 сотки) свой биотуалет, уличный погреб, постройки: баня, теплица, сарай.
С участка открывается панорамный вид на противоположный склон балки.
Дом расположен в черте города, в пяти минутах ходьбы от остановки и магазина.
ВОЗМОЖНА ПОКУПКА В РАССРОЧКУ!
Рядом с объектом находятся:
1 продуктовый магазин.
Возможен обмен на вашу недвижимость. Возможна продажа в рассрочку.
При звонке, пожалуйста, сообщите номер варианта -
JV001054176293










