Продажа 3-комнатной квартиры, Новосибирск, Дзержинского пр., 12, Новосибирская область
- Регион
- Новосибирская область
| Адрес | Новосибирск, Дзержинского пр., 12Объект на карте |
- Метро
- Берёзовая роща
- Тип дома
- Панельный
- Этаж
- 3 этаж в 10-этажном доме
- Кол-во комнат
- 3
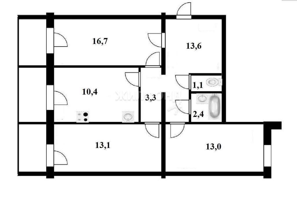
- Общая площадь
- 73.60 м2
- Жилая площадь
- 42.80 м2
- Площадь кухни
- 10.40 м2
- Дата обновления
- 17.04.2026
3 комн. квартира по ул. Дзержинского проспект. Общей площадью: 73.60 кв. м.
Продам просторную трехкомнатную квартиру улучшенной планировки в Дзержинском районе. Общая площадь квартиры составляет 73.6 кв. м., что позволит вашей семье чувствовать себя комфортно и свободно. Квартира расположена на 3 этаже 10-этажного дома, вторая линия обеспечивает отсутствие лишнего шума от проезжей части. В просторной прихожей есть вместительный шкаф для хранения вещей. Три лоджии -дополнительные места хранения.
Развитая инфраструктура: детские сады, школы, магазины, аптеки, банки, что обеспечит вашей семье удобство и комфортный образ жизни. В пешей доступности находится станция метро Березовая роща и одноимённый ПКиО Березовая роща с аттракционами, с прокатом лыж и коньков.
Это отличный вариант для тех, кто хочет приобрести просторное и уютное жилье в хорошем районе города. Приглашаем на просмотр! !
Рядом с объектом находятся:
1 школа,
5 детских садов,
14 продуктовых магазинов,
3 спортивных учреждения,
1 гимназия,
1 лицей,
1 колледж.
Возможен обмен на вашу недвижимость. Возможна продажа в рассрочку.
При звонке, пожалуйста, сообщите номер варианта -
JV003054122533
Продам просторную трехкомнатную квартиру улучшенной планировки в Дзержинском районе. Общая площадь квартиры составляет 73.6 кв. м., что позволит вашей семье чувствовать себя комфортно и свободно. Квартира расположена на 3 этаже 10-этажного дома, вторая линия обеспечивает отсутствие лишнего шума от проезжей части. В просторной прихожей есть вместительный шкаф для хранения вещей. Три лоджии -дополнительные места хранения.
Развитая инфраструктура: детские сады, школы, магазины, аптеки, банки, что обеспечит вашей семье удобство и комфортный образ жизни. В пешей доступности находится станция метро Березовая роща и одноимённый ПКиО Березовая роща с аттракционами, с прокатом лыж и коньков.
Это отличный вариант для тех, кто хочет приобрести просторное и уютное жилье в хорошем районе города. Приглашаем на просмотр! !
Рядом с объектом находятся:
1 школа,
5 детских садов,
14 продуктовых магазинов,
3 спортивных учреждения,
1 гимназия,
1 лицей,
1 колледж.
Возможен обмен на вашу недвижимость. Возможна продажа в рассрочку.
При звонке, пожалуйста, сообщите номер варианта -
JV003054122533














