Продажа 1-комнатной квартиры, Новосибирск, Дуси Ковальчук ул., 378В, Новосибирская область
- Регион
- Новосибирская область
| Адрес | Новосибирск, Дуси Ковальчук ул., 378ВОбъект на карте |
- Метро
- Заельцовская
- Тип дома
- Кирпичный
- Этаж
- 26 этаж в 26-этажном доме
- Кол-во комнат
- 1
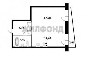
- Общая площадь
- 41.40 м2
- Жилая площадь
- 17.08 м2
- Площадь кухни
- 14.48 м2
- Дата обновления
- 17.04.2026
- Дата размещения
- 21.02.2026
1 комн. квартира по ул. Дуси Ковальчук. Общей площадью: 41.40 кв. м.
Очень достойная однокомнатная квартира по параметрам двухкомнатной студии, ждет Вас.
Квартира видовая, находится на двадцать шестом этаже.
Квартира готова для Вашего ремонта и желаний, ключи на руках.
Всех желающих жду на просмотр!
Возможен обмен на вашу недвижимость. Возможна продажа в рассрочку.
При звонке, пожалуйста, сообщите номер варианта -
JV001054196855
Очень достойная однокомнатная квартира по параметрам двухкомнатной студии, ждет Вас.
Квартира видовая, находится на двадцать шестом этаже.
Квартира готова для Вашего ремонта и желаний, ключи на руках.
Всех желающих жду на просмотр!
Возможен обмен на вашу недвижимость. Возможна продажа в рассрочку.
При звонке, пожалуйста, сообщите номер варианта -
JV001054196855












