Продажа 2-комнатной квартиры, Новосибирск, Трудовая ул., 7, Новосибирская область
- Регион
- Новосибирская область
| Адрес | Новосибирск, Трудовая ул., 7Объект на карте |
- Метро
- Площадь Ленина
- Тип дома
- Кирпичный
- Этаж
- 5 этаж в 5-этажном доме
- Кол-во комнат
- 2
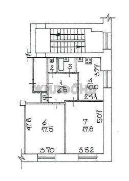
- Общая площадь
- 56.30 м2
- Жилая площадь
- 36.30 м2
- Площадь кухни
- 10.00 м2
- Дата обновления
- 17.04.2026
- Дата размещения
- 24.02.2026
2 комн. квартира по ул. Трудовая. Общей площадью: 56.30 кв. м.
САМЫЙ-САМЫЙ-САМЫЙ ЦЕНТР! ГИМНАЗИЯ № 1 ПО ПРОПИСКЕ!
Квартира с изолированными комнатами в отличном состоянии, очень уютная и теплая (1970г. постройки) .
Выполнен капитальный современный ремонт из дорогостоящих материалов. Пол ПВХ плитка, стены-флизелиновые обои, санузлы - керамогранит еstimа( пол и стены) , сантехника iddis.
Отличный новый кухонный гарнитур и бытовая техника, духовка gоrеniе . Вся кухня с мебелью и техникой остается покупателю. Остальная мебель по договоренности. Вместительная встроенная гардеробная. На межкомнатных дверях магнитные замки.
О звукоизоляции в таких домах не нужно говорить лишних слов - толщина кирпичных стен - 1м! Шум улицы отсекают качественные стеклопакеты.
В 2017 году произведен капитальный ремонт крыши, фасада, систем отопления и водоснабжения, отремонтированы подъезды. Въезд на парковку через шлагбаум, во дворе всегда есть парковочные места. На территории двора уникальная хоккейная коробка. Дом сад имеет очень красивый сквер для вашего отдыха и прогулок. Полностью закрытая территория.
В шаговой доступности: ПЛОЩАДЬ ЛЕНИНА, ГИМНАЗИЯ №1, Архитектурная Академия, Медакадемия, НАРХОЗ, Экономический лицей, Центральный и Первомайский парки. Театры - Оперный, Музкомедии, Красный Факел, Дом Актера. ТРЦ Галерея, школы , детские сады , кафе, рестораны, кинотеатры, салоны красоты! До станции метро Площадь Ленина всего 150 метров!
Квартира подходит как для проживания , так и для сдачи в аренду.
Документы готовы к продаже, квартира без обременений и долгов. Один собственник. Быстрый выход на сделку. Вся юридическая сторона сделки будет тщательно проработана, чтобы вы могли без лишних хлопот стать владельцем этой замечательной квартиры. Приглашаем вас на просмотр, чтобы вы смогли лично убедиться в привлекательности этого предложения. Звоните и записывайтесь на удобное для вас время. Мы рады будем ответить на все ваши вопросы и помочь с выбором вашей новой квартиры.
Рядом с объектом находятся:
1 школа,
4 детских сада,
10 продуктовых магазинов,
5 спортивных учреждений,
1 гимназия,
1 лицей,
2 колледжа,
1 техникум.
Возможен обмен на вашу недвижимость. Возможна продажа в рассрочку.
При звонке, пожалуйста, сообщите номер варианта -
JV002054170481
САМЫЙ-САМЫЙ-САМЫЙ ЦЕНТР! ГИМНАЗИЯ № 1 ПО ПРОПИСКЕ!
Квартира с изолированными комнатами в отличном состоянии, очень уютная и теплая (1970г. постройки) .
Выполнен капитальный современный ремонт из дорогостоящих материалов. Пол ПВХ плитка, стены-флизелиновые обои, санузлы - керамогранит еstimа( пол и стены) , сантехника iddis.
Отличный новый кухонный гарнитур и бытовая техника, духовка gоrеniе . Вся кухня с мебелью и техникой остается покупателю. Остальная мебель по договоренности. Вместительная встроенная гардеробная. На межкомнатных дверях магнитные замки.
О звукоизоляции в таких домах не нужно говорить лишних слов - толщина кирпичных стен - 1м! Шум улицы отсекают качественные стеклопакеты.
В 2017 году произведен капитальный ремонт крыши, фасада, систем отопления и водоснабжения, отремонтированы подъезды. Въезд на парковку через шлагбаум, во дворе всегда есть парковочные места. На территории двора уникальная хоккейная коробка. Дом сад имеет очень красивый сквер для вашего отдыха и прогулок. Полностью закрытая территория.
В шаговой доступности: ПЛОЩАДЬ ЛЕНИНА, ГИМНАЗИЯ №1, Архитектурная Академия, Медакадемия, НАРХОЗ, Экономический лицей, Центральный и Первомайский парки. Театры - Оперный, Музкомедии, Красный Факел, Дом Актера. ТРЦ Галерея, школы , детские сады , кафе, рестораны, кинотеатры, салоны красоты! До станции метро Площадь Ленина всего 150 метров!
Квартира подходит как для проживания , так и для сдачи в аренду.
Документы готовы к продаже, квартира без обременений и долгов. Один собственник. Быстрый выход на сделку. Вся юридическая сторона сделки будет тщательно проработана, чтобы вы могли без лишних хлопот стать владельцем этой замечательной квартиры. Приглашаем вас на просмотр, чтобы вы смогли лично убедиться в привлекательности этого предложения. Звоните и записывайтесь на удобное для вас время. Мы рады будем ответить на все ваши вопросы и помочь с выбором вашей новой квартиры.
Рядом с объектом находятся:
1 школа,
4 детских сада,
10 продуктовых магазинов,
5 спортивных учреждений,
1 гимназия,
1 лицей,
2 колледжа,
1 техникум.
Возможен обмен на вашу недвижимость. Возможна продажа в рассрочку.
При звонке, пожалуйста, сообщите номер варианта -
JV002054170481


















