Продажа 2-комнатной квартиры, Новосибирск, Толбухина ул., 35, Новосибирская область
- Регион
- Новосибирская область
| Адрес | Новосибирск, Толбухина ул., 35Объект на карте |
- Метро
- Золотая Нива
- Тип дома
- Панельный
- Этаж
- 3 этаж в 5-этажном доме
- Кол-во комнат
- 2
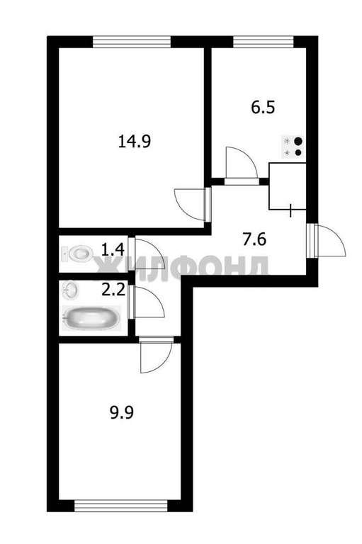
- Общая площадь
- 43.50 м2
- Жилая площадь
- 25.40 м2
- Площадь кухни
- 6.30 м2
- Дата обновления
- 13.05.2026
- Дата размещения
- 20.03.2026
2 комн. квартира по ул. Толбухина. Общей площадью: 43.50 кв. м.
Замечательная 2х комнатная квартира в обжитой, благоустроенной локации Дзержинского района.
Средний этаж, тихий двор. Планировка квартиры-ЛЕНИНГРАДКА (изолированные комнаты на две стороны, раздельный с. у) .
Свежий ремонт( на стадии завершения) : на полу ламинат, новая кафельная плитка в с. у и ванной, межкомнатные двери.
Быстрый выход на сделку .
Рядом с объектом находятся:
3 школы,
4 детских сада,
13 продуктовых магазинов,
1 спортивное учреждение.
Возможен обмен на вашу недвижимость. Возможна продажа в рассрочку.
При звонке, пожалуйста, сообщите номер варианта -
JV002054177128
Замечательная 2х комнатная квартира в обжитой, благоустроенной локации Дзержинского района.
Средний этаж, тихий двор. Планировка квартиры-ЛЕНИНГРАДКА (изолированные комнаты на две стороны, раздельный с. у) .
Свежий ремонт( на стадии завершения) : на полу ламинат, новая кафельная плитка в с. у и ванной, межкомнатные двери.
Быстрый выход на сделку .
Рядом с объектом находятся:
3 школы,
4 детских сада,
13 продуктовых магазинов,
1 спортивное учреждение.
Возможен обмен на вашу недвижимость. Возможна продажа в рассрочку.
При звонке, пожалуйста, сообщите номер варианта -
JV002054177128








