Продажа помещения различного назначения, Новосибирск, Ватутина ул., 28, Новосибирская область
- Регион
- Новосибирская область
| Адрес | Новосибирск, Ватутина ул., 28Объект на карте |
- Метро
- Площадь Маркса
- Этаж
- 1 этаж в 5-этажном доме
- Общая площадь
- 231.00 м2
- Дата обновления
- 17.04.2026
- Дата размещения
- 13.12.2025
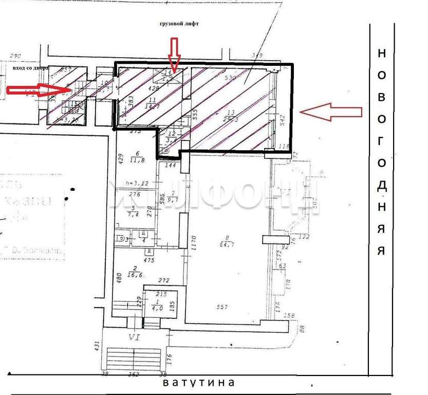
Торговое помещение по ул. Ватутина. Общей площадью: 231 кв. м. Помещение в центре левобережья на оживленном перекрестке ул. Ватутина - ул. Новогодняя. Два входа.
Первый этаж и подвал.
Первый этаж 60 кв. м. - отдельный вход с ул. Новогодняя и вход со двора. Высота потолка - 3м.
Место для рекламы. Большие витражные окна.
Натяжной потолок. Две проходные комнаты, санузел.
Подвал -170 кв. м. Вход через 1-й этаж и со двора. Высота переменная 2.20-2.40 м. Вентиляция.
Рабочий грузовой лифт на первый этаж. Подвод воды.
Возможность разгрузки товара.
Электрические мощности 8 КВт. Есть возможность увеличения.
Первый этаж сдан в аренду под салон красоты.
Собственник юридическое лицо.
Продажа с юр. лицом.
JC000020060334.
Первый этаж и подвал.
Первый этаж 60 кв. м. - отдельный вход с ул. Новогодняя и вход со двора. Высота потолка - 3м.
Место для рекламы. Большие витражные окна.
Натяжной потолок. Две проходные комнаты, санузел.
Подвал -170 кв. м. Вход через 1-й этаж и со двора. Высота переменная 2.20-2.40 м. Вентиляция.
Рабочий грузовой лифт на первый этаж. Подвод воды.
Возможность разгрузки товара.
Электрические мощности 8 КВт. Есть возможность увеличения.
Первый этаж сдан в аренду под салон красоты.
Собственник юридическое лицо.
Продажа с юр. лицом.
JC000020060334.
















