Продажа помещения различного назначения, Новосибирск, Кропоткина ул., 273, Новосибирская область
- Регион
- Новосибирская область
| Адрес | Новосибирск, Кропоткина ул., 273Объект на карте |
- Метро
- Заельцовская
- Этаж
- 1 этаж в 24-этажном доме
- Общая площадь
- 138.00 м2
- Дата обновления
- 17.04.2026
- Дата размещения
- 13.12.2025
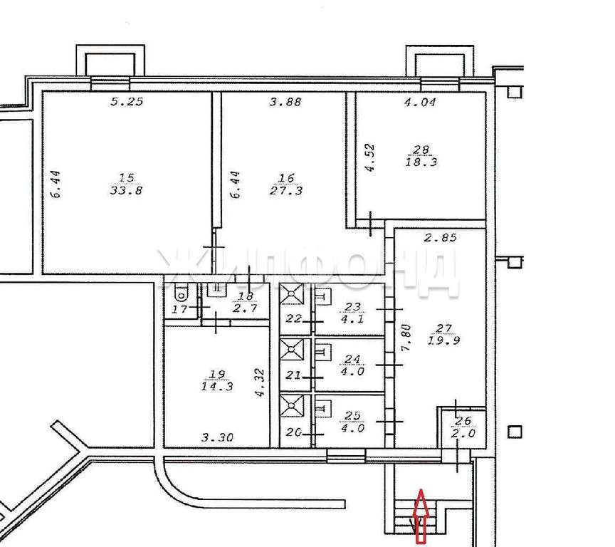
Помещение свободного назначения по ул. Кропоткина. Общей площадью: 138 кв. м. Универсальное помещение в цоколе.
Густонаселенный микрорайон. Новый дом.
Варианты- офис, офис-склад, салон, спорт-зал, швейный цех
Вход со двора. Окна в приямках.
Электрические мощности 9 Квт. Возможно увеличение.
Проведен предчистовой ремонт (штукатурка, электрика, стяжка, канализация, вытяжка)
Холл, три проходные комнаты, кладовая, санузел,
Помещения под душевые (номера на плане 20-25, стены не капитальные) можно переоборудовать.
Высота потолка 2.8 м
JC000001003844.
Густонаселенный микрорайон. Новый дом.
Варианты- офис, офис-склад, салон, спорт-зал, швейный цех
Вход со двора. Окна в приямках.
Электрические мощности 9 Квт. Возможно увеличение.
Проведен предчистовой ремонт (штукатурка, электрика, стяжка, канализация, вытяжка)
Холл, три проходные комнаты, кладовая, санузел,
Помещения под душевые (номера на плане 20-25, стены не капитальные) можно переоборудовать.
Высота потолка 2.8 м
JC000001003844.




