Продажа помещения различного назначения, Новосибирск, Немировича-Данченко ул., 150, Новосибирская область
- Регион
- Новосибирская область
| Адрес | Новосибирск, Немировича-Данченко ул., 150Объект на карте |
- Метро
- Студенческая
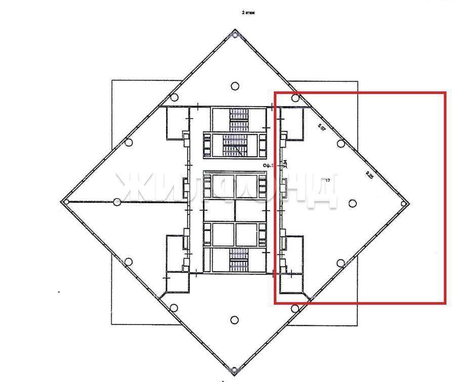
- Этаж
- 2 этаж в 25-этажном доме
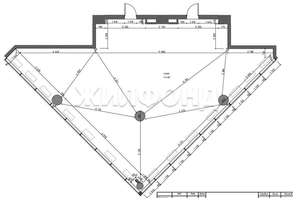
- Общая площадь
- 157.00 м2
- Дата обновления
- 17.04.2026
- Дата размещения
- 13.12.2025
Торговое помещение по ул. Немировича-Данченко. Общей площадью: 157 кв. м. Перспективная локация.
Крупный транспортный узел. Второй по значимости автомобильный трафик левобережья.
650 метров от метро Студенческая (10 минутная пешая доступность) .
Формируется новый торгово-деловой центр Левого берега. Развитая пищевая инфраструктура. В шаговой
доступности досуговый объект Сибирь - Арена.
Пешеходный переход, автомобильный перекрёсток, въезд и проход в ж. к Панорама - располагаются в
непосредственной близости от объекта.
Обустроенная прилегающая территория с ландшафтным дизайном и вечерним освещением.
Узнаваемое и уникальное для Новосибирска современное архитектурное решение.
2-ой этаж, круглосуточный доступ.
Открытая планировка с высокой степенью инсоляции.
Возможно размещение рекламы на всей площади витража.
Два входа, свободная планировка и протяжённый витраж - позволяют зонировать помещение под различные
потребности и предпочтения.
Две системы приточно-вытяжной вентиляции, 2 кондиционера, выделенный вентканал. 15 кВт, возможно
увеличение.
Основное преимущество- дефицитность на Левом берегу современных коммерческих помещений, с хорошей
транспортной и пешеходной доступностью.
Наилучшее использование- шоу-рум, торгово-выставочный зал, офис представительского уровня.
JC000060050087.
Крупный транспортный узел. Второй по значимости автомобильный трафик левобережья.
650 метров от метро Студенческая (10 минутная пешая доступность) .
Формируется новый торгово-деловой центр Левого берега. Развитая пищевая инфраструктура. В шаговой
доступности досуговый объект Сибирь - Арена.
Пешеходный переход, автомобильный перекрёсток, въезд и проход в ж. к Панорама - располагаются в
непосредственной близости от объекта.
Обустроенная прилегающая территория с ландшафтным дизайном и вечерним освещением.
Узнаваемое и уникальное для Новосибирска современное архитектурное решение.
2-ой этаж, круглосуточный доступ.
Открытая планировка с высокой степенью инсоляции.
Возможно размещение рекламы на всей площади витража.
Два входа, свободная планировка и протяжённый витраж - позволяют зонировать помещение под различные
потребности и предпочтения.
Две системы приточно-вытяжной вентиляции, 2 кондиционера, выделенный вентканал. 15 кВт, возможно
увеличение.
Основное преимущество- дефицитность на Левом берегу современных коммерческих помещений, с хорошей
транспортной и пешеходной доступностью.
Наилучшее использование- шоу-рум, торгово-выставочный зал, офис представительского уровня.
JC000060050087.
















