Продажа помещения различного назначения, Новосибирск, Плановая ул., 50, Новосибирская область
- Регион
- Новосибирская область
| Адрес | Новосибирск, Плановая ул., 50Объект на карте |
- Метро
- Заельцовская
- Этаж
- 1 этаж в 19-этажном доме
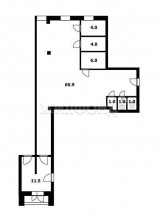
- Общая площадь
- 87.00 м2
- Дата обновления
- 17.04.2026
- Дата размещения
- 13.12.2025
Торговое помещение по ул. Плановая. Общей площадью: 87 кв. м. Продам торгово-офисное помещение с отдельным входом в Заельцовском районе г. Новосибирска,
которое сегодня приносит прибыль! Помещение
располагается рядом с густонаселенным жилым массивом (более 50 домов и 15 тысяч жителей,
дополнительно, рядом, скоро сдадут новостройки) на высоком
первом этаже с отдельным входом. Рядом с входом есть парковочные места. Помещение с ремонтом,
светлое, с высокими (4 м) потолками.
Помещение оформлено в нежилое свободного назначения и подходит под- пункт выдачи заказов, аптеку,
стоматологию, парикмахерскую, массажный салон,
магазин, цветочный салон и другие сферы деятельности! Место наработанное десятилетиями. Много лет
помещение занимает надежный успешный арендатор,
готовый перезаключить договор с новым собственником.
Продажа подходит под любую форму расчетов. Собственник физическое лицо. Вся документация в полном
порядке. Причины продажи- инвестиции в другой
проект. По всем вопросам и показам ЗВОНИТЕ!
JC000090030026.
которое сегодня приносит прибыль! Помещение
располагается рядом с густонаселенным жилым массивом (более 50 домов и 15 тысяч жителей,
дополнительно, рядом, скоро сдадут новостройки) на высоком
первом этаже с отдельным входом. Рядом с входом есть парковочные места. Помещение с ремонтом,
светлое, с высокими (4 м) потолками.
Помещение оформлено в нежилое свободного назначения и подходит под- пункт выдачи заказов, аптеку,
стоматологию, парикмахерскую, массажный салон,
магазин, цветочный салон и другие сферы деятельности! Место наработанное десятилетиями. Много лет
помещение занимает надежный успешный арендатор,
готовый перезаключить договор с новым собственником.
Продажа подходит под любую форму расчетов. Собственник физическое лицо. Вся документация в полном
порядке. Причины продажи- инвестиции в другой
проект. По всем вопросам и показам ЗВОНИТЕ!
JC000090030026.




















