Продажа помещения различного назначения, Новосибирск, Кирова ул., 11, Новосибирская область
- Регион
- Новосибирская область
| Адрес | Новосибирск, Кирова ул., 11Объект на карте |
- Метро
- Октябрьская
- Этаж
- 1 этаж в 24-этажном доме
- Общая площадь
- 236.00 м2
- Дата обновления
- 17.04.2026
- Дата размещения
- 13.12.2025
Торговое помещение по ул. Кирова. Общей площадью: 236 кв. м. Продам, отличное помещение свободного назначения, расположенное на первом этаже жк облака.
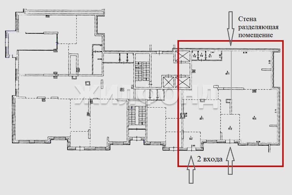
помещение имеет два входа, имеется тамбур, окна с возможностью проветривания. в помещении произведён ремонт. пол керамогранит, стены частично окрашены.
в данный момент помещение разделено на два, каждое с отдельным входом, площадью 120 м2 и 116 м2, в каждом есть туалет. высота потолков 3,8 метра. электрическая мощность 50 квт.
предлагаемый объект расположен в активно развивающемся районе, в пешей доступности от станции метро октябрьская.
развитая инфраструктура представлена государственными учреждениями, деловыми и торговыми комплексами, точками общественного питания.
современный дом с благоустроенной территорией у входа, транспортная доступность и наличие парковочных мест делают данный объект удобным для сотрудников и клиентов компании.
JC000020070398.
помещение имеет два входа, имеется тамбур, окна с возможностью проветривания. в помещении произведён ремонт. пол керамогранит, стены частично окрашены.
в данный момент помещение разделено на два, каждое с отдельным входом, площадью 120 м2 и 116 м2, в каждом есть туалет. высота потолков 3,8 метра. электрическая мощность 50 квт.
предлагаемый объект расположен в активно развивающемся районе, в пешей доступности от станции метро октябрьская.
развитая инфраструктура представлена государственными учреждениями, деловыми и торговыми комплексами, точками общественного питания.
современный дом с благоустроенной территорией у входа, транспортная доступность и наличие парковочных мест делают данный объект удобным для сотрудников и клиентов компании.
JC000020070398.



















