Продажа помещения различного назначения, Новосибирск, Крылова ул., 1, Новосибирская область
- Регион
- Новосибирская область
| Адрес | Новосибирск, Крылова ул., 1Объект на карте |
- Этаж
- 1 этаж в 5-этажном доме
- Общая площадь
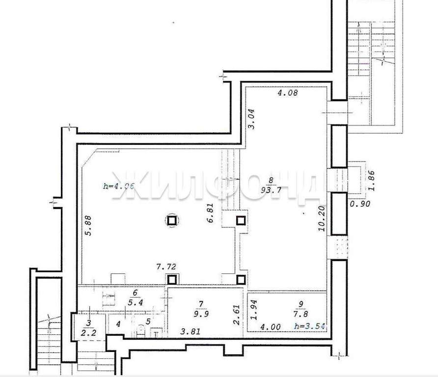
- 127.00 м2
- Дата обновления
- 17.04.2026
Помещение свободного назначения по ул. Крылова. Общей площадью: 127 кв. м. Успейте купить выгодно торговое помещение свободного назначения в самом
центре г. новосибирска!
самое лучшее и выгодное месторасположение для бизнеса в нашем городе!
м. красный проспект.
- первая линия. отдельный вход ( подвальное помещение) жилого здания на улицу крылова.
- потолки 4.06 метра , два отдельных больших зала ! свободная планировка
квадратной формы.
- мощность 10 квт. можно увеличить мощность сколько нужно.
- так же есть потенциальный арендатор. подробности при встрече.
- кондиционеры. охранно-пожарная сигнализация.
- высокий пешеходный трафик 4500 чел. в сутки! автомобильный трафик!
- супер место для кофейни , кафе, ресторан и так же подойдет под торговлю различных видов деятельности
( бутик, одежда, шоурумы и
т. д. ) .
звоните ! покажем в удобное для вас время !
JC000060100299.
центре г. новосибирска!
самое лучшее и выгодное месторасположение для бизнеса в нашем городе!
м. красный проспект.
- первая линия. отдельный вход ( подвальное помещение) жилого здания на улицу крылова.
- потолки 4.06 метра , два отдельных больших зала ! свободная планировка
квадратной формы.
- мощность 10 квт. можно увеличить мощность сколько нужно.
- так же есть потенциальный арендатор. подробности при встрече.
- кондиционеры. охранно-пожарная сигнализация.
- высокий пешеходный трафик 4500 чел. в сутки! автомобильный трафик!
- супер место для кофейни , кафе, ресторан и так же подойдет под торговлю различных видов деятельности
( бутик, одежда, шоурумы и
т. д. ) .
звоните ! покажем в удобное для вас время !
JC000060100299.












