Продажа помещения различного назначения, Новосибирск, Вилюйская ул., 8, Новосибирская область
- Регион
- Новосибирская область
| Адрес | Новосибирск, Вилюйская ул., 8Объект на карте |
- Метро
- Речной вокзал
- Этаж
- 1 этаж в 17-этажном доме
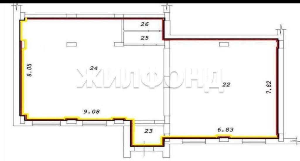
- Общая площадь
- 128.00 м2
- Дата обновления
- 17.04.2026
- Дата размещения
- 06.02.2026
Помещение свободного назначения по ул. Вилюйская. Общей площадью: 128 кв. м. Продаётся коммерческое помещение 128.4 м? с арендатором ВАЛБЕРИС
Новосибирск, ул. Вилюйская, 8
ГОТОВЫЙ ПАССИВНЫЙ ДОХОД ПОД КЛЮЧ!
Цена- 13 000 000 руб. Арендная ставка- 142 000 руб. . мес.
Продается не просто помещение, а готовый финансовый актив! Помещение площадью 128.4 кв. м. уже сдано по долгосрочному договору федеральной сети
Валберис. Вы покупаете стабильный доход с первого дня. Не нужно искать арендатора, делать ремонт или нести расходы на простой - всё уже работает.
РАСЧЁТЫ
Ежемесячный доход (аренда) - 142 000
Ежемесячные расходы (коммуналка) - 14 000 (по актуальным данным)
Чистый доход в месяц- 128 000
Чистый доход в год- 1 536 000
ПоказательЗначение
Цена продажи13 000 000
Годовая доходность (САР Rаtе) ~ 11.8
Срок окупаемости~ 8.5 лет
ПРЕИМУЩЕСТВА И ЛОКАЦИЯ
Надёжный арендатор- Федеральная сеть - минимальные риски, гарантированные платежи.
Отличная локация Развитая инфраструктура, транспортная доступность, рядом Инюшенский бор, НГПУ, супермаркеты.
Полная документальная готовность- Договор аренды, правоустанавливающие документы - всё в порядке.
Инвесторам, ищущим стабильный актив с доходностью выше банковской.
Всем, кто хочет получать пассивный доход от 128 000 . мес. без хлопот.
Не упустите редкую возможность купить готовый бизнес по управлению недвижимостью!
Звоните прямо сейчас, чтобы запросить полный пакет документов, договор аренды и договориться о просмотре!
Р. S. Объекты с таким сочетанием надёжности и доходности уходят быстро!
JC000060070551.
Новосибирск, ул. Вилюйская, 8
ГОТОВЫЙ ПАССИВНЫЙ ДОХОД ПОД КЛЮЧ!
Цена- 13 000 000 руб. Арендная ставка- 142 000 руб. . мес.
Продается не просто помещение, а готовый финансовый актив! Помещение площадью 128.4 кв. м. уже сдано по долгосрочному договору федеральной сети
Валберис. Вы покупаете стабильный доход с первого дня. Не нужно искать арендатора, делать ремонт или нести расходы на простой - всё уже работает.
РАСЧЁТЫ
Ежемесячный доход (аренда) - 142 000
Ежемесячные расходы (коммуналка) - 14 000 (по актуальным данным)
Чистый доход в месяц- 128 000
Чистый доход в год- 1 536 000
ПоказательЗначение
Цена продажи13 000 000
Годовая доходность (САР Rаtе) ~ 11.8
Срок окупаемости~ 8.5 лет
ПРЕИМУЩЕСТВА И ЛОКАЦИЯ
Надёжный арендатор- Федеральная сеть - минимальные риски, гарантированные платежи.
Отличная локация Развитая инфраструктура, транспортная доступность, рядом Инюшенский бор, НГПУ, супермаркеты.
Полная документальная готовность- Договор аренды, правоустанавливающие документы - всё в порядке.
Инвесторам, ищущим стабильный актив с доходностью выше банковской.
Всем, кто хочет получать пассивный доход от 128 000 . мес. без хлопот.
Не упустите редкую возможность купить готовый бизнес по управлению недвижимостью!
Звоните прямо сейчас, чтобы запросить полный пакет документов, договор аренды и договориться о просмотре!
Р. S. Объекты с таким сочетанием надёжности и доходности уходят быстро!
JC000060070551.












