Продажа помещения различного назначения, Новосибирск, Богдана Хмельницкого ул., 47, Новосибирская область
- Регион
- Новосибирская область
| Адрес | Новосибирск, Богдана Хмельницкого ул., 47Объект на карте |
- Метро
- Заельцовская
- Этаж
- 1 этаж в 4-этажном доме
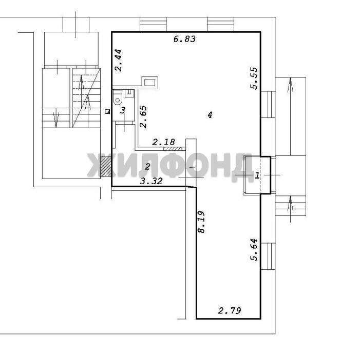
- Общая площадь
- 61.00 м2
- Дата обновления
- 28.04.2026
- Дата размещения
- 12.03.2026
Торговое помещение по ул. Богдана Хмельницкого. Общей площадью: 61 кв. м. Инвестиционно-привлекательное помещение на пересечении ТРАНСПОРТНЫХ ПОТОКОВ. Ваш
ГАРАНТИРОВАННЫЙ трафик!
Предлагается помещение СВОБОДНОГО НАЗНАЧЕНИЯ общей площадью 62 кв. м, расположенное
на 1-м этаже жилого здания в локации с ВЫСОКОЙ деловой активностью. Вход ул. Б. Хмельницкого.
Угловое расположение на пересечении ул. Богдана Хмельницкого и 25 лет Октября обеспечивает
КРУГОВОЙ ОБЗОР витрин и ДОСТУПНОСТЬ с двух основных магистралей района. Благодаря ВЫСОКОЙ
ИНТЕНСИВНОСТИ пешеходного и автомобильного движения Вы получаете БОЛЬШУЮ АУДИТОРИЮ
потоковых клиентов без дополнительных затрат на маркетинг.
Район с многолетней плотной застройкой и РАЗВИТОЙ инфраструктурой гарантирует СТАБИЛЬНЫЙ
СПРОС. УДОБНЫЙ подъезд для транспорта и наличие ПАРКОВОЧНЫХ ЗОН обеспечат
БЕСПРЕПЯТСТВЕННЫЙ ДОСТУП для покупателей и поставщиков.
ИДЕАЛЬНОЕ соотношение площади и местоположения ДЛЯ ФОРМАТОВ- продуктовый магазин у
дома, пекарня с ароматными круассанами, цветочный ларек, пункт выдачи маркетплейсов, не сетевая
аптека, салон красоты или офис продаж. Здесь выстрелит практически ЛЮБОЙ БИЗНЕС, завязанный на
потоке людей.
В помещении 4 окна, выходят на 2 стороны, большое открытое пространство, ОТДЕЛЬНЫЙ ВХОД.
Перепланировка УЗАКОНЕНА и позволит без труда организовать пространство именно под Ваши
требования, а ОТЛИЧНОЕ состояние помещений, инженерных систем и коммуникаций добавит УДОБСТВА
использования.
ВЫСОКАЯ ПРОХОДИМОСТЬ в районе с плотным населением и развитой инфраструктурой
позволяет прогнозировать БЫСТРЫЙ выход на целевую выручку.
Это помещение не задержится на рынке! ЗВОНИТЕ, пока не перехватили!
JC000020040275
ГАРАНТИРОВАННЫЙ трафик!
Предлагается помещение СВОБОДНОГО НАЗНАЧЕНИЯ общей площадью 62 кв. м, расположенное
на 1-м этаже жилого здания в локации с ВЫСОКОЙ деловой активностью. Вход ул. Б. Хмельницкого.
Угловое расположение на пересечении ул. Богдана Хмельницкого и 25 лет Октября обеспечивает
КРУГОВОЙ ОБЗОР витрин и ДОСТУПНОСТЬ с двух основных магистралей района. Благодаря ВЫСОКОЙ
ИНТЕНСИВНОСТИ пешеходного и автомобильного движения Вы получаете БОЛЬШУЮ АУДИТОРИЮ
потоковых клиентов без дополнительных затрат на маркетинг.
Район с многолетней плотной застройкой и РАЗВИТОЙ инфраструктурой гарантирует СТАБИЛЬНЫЙ
СПРОС. УДОБНЫЙ подъезд для транспорта и наличие ПАРКОВОЧНЫХ ЗОН обеспечат
БЕСПРЕПЯТСТВЕННЫЙ ДОСТУП для покупателей и поставщиков.
ИДЕАЛЬНОЕ соотношение площади и местоположения ДЛЯ ФОРМАТОВ- продуктовый магазин у
дома, пекарня с ароматными круассанами, цветочный ларек, пункт выдачи маркетплейсов, не сетевая
аптека, салон красоты или офис продаж. Здесь выстрелит практически ЛЮБОЙ БИЗНЕС, завязанный на
потоке людей.
В помещении 4 окна, выходят на 2 стороны, большое открытое пространство, ОТДЕЛЬНЫЙ ВХОД.
Перепланировка УЗАКОНЕНА и позволит без труда организовать пространство именно под Ваши
требования, а ОТЛИЧНОЕ состояние помещений, инженерных систем и коммуникаций добавит УДОБСТВА
использования.
ВЫСОКАЯ ПРОХОДИМОСТЬ в районе с плотным населением и развитой инфраструктурой
позволяет прогнозировать БЫСТРЫЙ выход на целевую выручку.
Это помещение не задержится на рынке! ЗВОНИТЕ, пока не перехватили!
JC000020040275


