Продажа дома, Скала с., Сельская ул., Новосибирская область
- Регион
- Новосибирская область
| Адрес | Скала с., Сельская ул.Объект на карте |
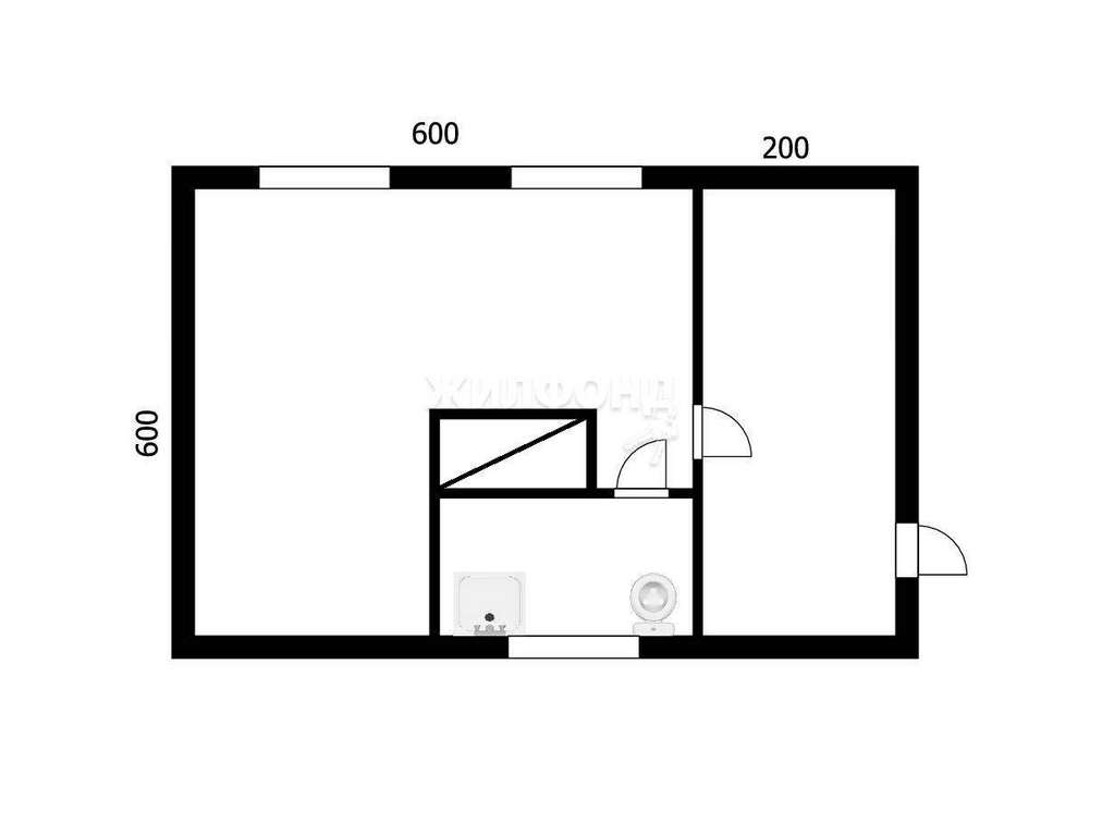
- Площадь дома
- 24.30 м2
- Площадь участка
- 10.50 сот.
- Дата обновления
- 05.05.2026
- Дата размещения
- 13.12.2025
Дом по ул. Сельская. Общей площадью: 24.30 кв. м.
Ваш Уютный Оазис в Скале Ждет Вас!
Устали от городской суеты? Мечтаете о тишине, природе и собственном уголке спокойствия всего в 50 км от Новосибирска?
Представляем ваш идеальный дом в живописном селе Скала место, где комфорт встречается с природой!
Ваш новый дом это
Уютное гнездышко: Компактный и функциональный дом общей площадью 24.3 кв. м., идеально подходящий для тех, кто ценит продуманность и комфорт.
Продуманная планировка: Внутри вас ждет все необходимое для полноценной жизни: функциональная кухня, уютная спальня и современный санузел.
Центральное водоснабжение: Забудьте о хлопотах вода у вас всегда под рукой.
Перспектива будущего: Газ проходит по границе участка отличная возможность для расширения комфорта в будущем.
Простор и свобода: Окна выходят на большой двор, открывая безграничные возможности для создания вашей идеальной зоны отдыха: барбекю, детская площадка, сад всё в ваших руках!
Безопасность и приватность: Территория надежно огорожена забором с автоматическими воротами ваш личный и безопасный мир.
Инвестиции в будущее: На 10.5 сотках ровного участка уже заложен основательный фундамент под будущий коттедж идеальная площадка для воплощения ваших грандиозных планов!
Урожай круглый год: На участке уже установлена теплица, готовая радовать вас свежими овощами.
Расположение ваше неоспоримое преимущество.
Экологически чистый район: Село Скала это синоним свежего воздуха и спокойствия.
Близость к природе: Всего в нескольких шагах живописная река Чаус, идеальное место для прогулок, пикников и рыбалки.
Развитая инфраструктура: Несмотря на уединенность, все необходимое под рукой: магазины, школа, детский сад ваша семья будет окружена заботой.
Удобная транспортная доступность: Всего 50 км до Новосибирска быстрый доступ ко всем благам большого города.
Цена и ценность, подчеркивающие выгодность предложения:
Это не просто покупка дома, это инвестиция в ваше счастье, здоровье и спокойствие. Вы получаете не только уютное жилье, но и землю для будущих свершений, и возможность жить в гармонии с природой, находясь в разумной близости от города.
Не упустите свой шанс обрести дом мечты!
Время действовать!
Звоните прямо сейчас, или обратитесь в офис Жилфонд по адресу р. п. Колывань, ул. Ленина 54, и получите исчерпывающую информацию об этом уникальном предложении. Мы с радостью организуем для вас просмотр в удобное для вас время!
Ваше спокойствие, комфорт и счастливое будущее начинаются здесь в доме вашей мечты в селе Скала!
Возможен обмен на вашу недвижимость. Возможна продажа в рассрочку.
При звонке, пожалуйста, сообщите номер варианта -
JV008054137482
Ваш Уютный Оазис в Скале Ждет Вас!
Устали от городской суеты? Мечтаете о тишине, природе и собственном уголке спокойствия всего в 50 км от Новосибирска?
Представляем ваш идеальный дом в живописном селе Скала место, где комфорт встречается с природой!
Ваш новый дом это
Уютное гнездышко: Компактный и функциональный дом общей площадью 24.3 кв. м., идеально подходящий для тех, кто ценит продуманность и комфорт.
Продуманная планировка: Внутри вас ждет все необходимое для полноценной жизни: функциональная кухня, уютная спальня и современный санузел.
Центральное водоснабжение: Забудьте о хлопотах вода у вас всегда под рукой.
Перспектива будущего: Газ проходит по границе участка отличная возможность для расширения комфорта в будущем.
Простор и свобода: Окна выходят на большой двор, открывая безграничные возможности для создания вашей идеальной зоны отдыха: барбекю, детская площадка, сад всё в ваших руках!
Безопасность и приватность: Территория надежно огорожена забором с автоматическими воротами ваш личный и безопасный мир.
Инвестиции в будущее: На 10.5 сотках ровного участка уже заложен основательный фундамент под будущий коттедж идеальная площадка для воплощения ваших грандиозных планов!
Урожай круглый год: На участке уже установлена теплица, готовая радовать вас свежими овощами.
Расположение ваше неоспоримое преимущество.
Экологически чистый район: Село Скала это синоним свежего воздуха и спокойствия.
Близость к природе: Всего в нескольких шагах живописная река Чаус, идеальное место для прогулок, пикников и рыбалки.
Развитая инфраструктура: Несмотря на уединенность, все необходимое под рукой: магазины, школа, детский сад ваша семья будет окружена заботой.
Удобная транспортная доступность: Всего 50 км до Новосибирска быстрый доступ ко всем благам большого города.
Цена и ценность, подчеркивающие выгодность предложения:
Это не просто покупка дома, это инвестиция в ваше счастье, здоровье и спокойствие. Вы получаете не только уютное жилье, но и землю для будущих свершений, и возможность жить в гармонии с природой, находясь в разумной близости от города.
Не упустите свой шанс обрести дом мечты!
Время действовать!
Звоните прямо сейчас, или обратитесь в офис Жилфонд по адресу р. п. Колывань, ул. Ленина 54, и получите исчерпывающую информацию об этом уникальном предложении. Мы с радостью организуем для вас просмотр в удобное для вас время!
Ваше спокойствие, комфорт и счастливое будущее начинаются здесь в доме вашей мечты в селе Скала!
Возможен обмен на вашу недвижимость. Возможна продажа в рассрочку.
При звонке, пожалуйста, сообщите номер варианта -
JV008054137482











