Продажа дома, п Коченево, Культурная ул, Новосибирская область
- Регион
- Новосибирская область
| Адрес | п Коченево, Культурная улОбъект на карте |
- Площадь дома
- 20.00 м2
- Площадь участка
- 15.00 сот.
- Дата обновления
- 06.05.2026
- Дата размещения
- 13.12.2025
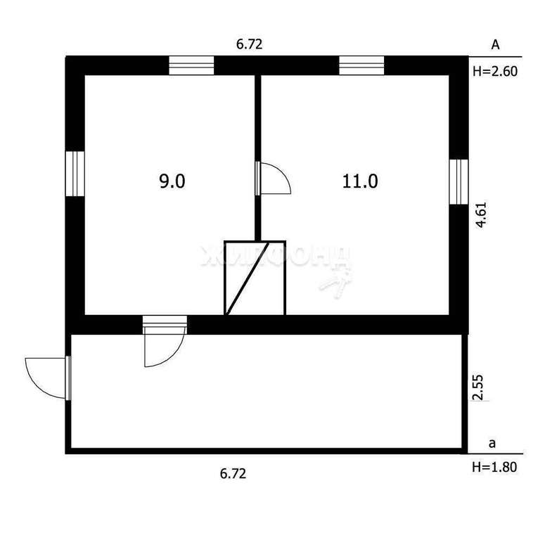
Дом по ул. Культурная. Общей площадью: 20.00 кв. м.
В продаже 1-комнатный дом!
Земельный участок 15 соток!
Участок расположен так, что есть возможность выхода на улицы Культурная и Маяковского!
Помогу получить кредитное решение!
Дополнительно оплачивается комиссия с покупателя.
Возможен обмен на вашу недвижимость. Возможна продажа в рассрочку.
При звонке, пожалуйста, сообщите номер варианта -
JV008054157417
В продаже 1-комнатный дом!
Земельный участок 15 соток!
Участок расположен так, что есть возможность выхода на улицы Культурная и Маяковского!
Помогу получить кредитное решение!
Дополнительно оплачивается комиссия с покупателя.
Возможен обмен на вашу недвижимость. Возможна продажа в рассрочку.
При звонке, пожалуйста, сообщите номер варианта -
JV008054157417





