Продажа дома, с.Ленинское, Андреева ул, Новосибирская область
- Регион
- Новосибирская область
| Адрес | с.Ленинское, Андреева улОбъект на карте |
- Площадь дома
- 136.60 м2
- Площадь участка
- 6.03 сот.
- Дата обновления
- 06.05.2026
- Дата размещения
- 13.12.2025
Коттедж по ул. Андреева. Общей площадью: 136.60 кв. м.
СРОЧНО! ! Цена снижена до 15 мая! !
РЕАЛЬНЫЙ ВАРИАНТ! ! НЕ ПРОЕКТ! !
Просторный теплый коттедж в центре села Ленинское
Дом построен из газобетона с соблюдением всех строительных технологий. Установлены пластиковые окна. Трехфазное электричество, центральный водопровод, слив - септик, отопление: электрокотел. Установлены радиаторы отопления, по Вашему желанию можем дополнительно смонтировать теплый пол ( не в цене) . Есть возможность подключить газ. Внутри стены оштукатурены по маякам, подготовлены к отделке обоями.
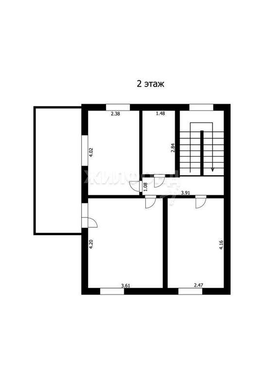
Планировка: 1 этаж - кухня- гостинная, с. узел, котельная, 2 этаж - 3 спальни ( две из них с выходом на балкон) , с. узел. Просторная терраса и балкон, с которого открывается прекрасный вид на море.
До моря всего 700 метров!
В шаговой доступности находятся магазины, супермаркеты, аптеки, банки, кафе и рестораны. В непосредственной близости расположены детские сады, школы и спортивные площадки, что делает данное место идеальным для семей с детьми.
Хорошая транспортная доступность позволит быстро добраться до города.
Сельская ипотека возможна!
Все документы готовы к быстрой сделке.
Возможен обмен на вашу недвижимость. Возможна продажа в рассрочку.
При звонке, пожалуйста, сообщите номер варианта -
JV008054171629
СРОЧНО! ! Цена снижена до 15 мая! !
РЕАЛЬНЫЙ ВАРИАНТ! ! НЕ ПРОЕКТ! !
Просторный теплый коттедж в центре села Ленинское
Дом построен из газобетона с соблюдением всех строительных технологий. Установлены пластиковые окна. Трехфазное электричество, центральный водопровод, слив - септик, отопление: электрокотел. Установлены радиаторы отопления, по Вашему желанию можем дополнительно смонтировать теплый пол ( не в цене) . Есть возможность подключить газ. Внутри стены оштукатурены по маякам, подготовлены к отделке обоями.
Планировка: 1 этаж - кухня- гостинная, с. узел, котельная, 2 этаж - 3 спальни ( две из них с выходом на балкон) , с. узел. Просторная терраса и балкон, с которого открывается прекрасный вид на море.
До моря всего 700 метров!
В шаговой доступности находятся магазины, супермаркеты, аптеки, банки, кафе и рестораны. В непосредственной близости расположены детские сады, школы и спортивные площадки, что делает данное место идеальным для семей с детьми.
Хорошая транспортная доступность позволит быстро добраться до города.
Сельская ипотека возможна!
Все документы готовы к быстрой сделке.
Возможен обмен на вашу недвижимость. Возможна продажа в рассрочку.
При звонке, пожалуйста, сообщите номер варианта -
JV008054171629












