Продажа дома, Искитим, Щорса ул., Новосибирская область
- Регион
- Новосибирская область
| Адрес | Искитим, Щорса ул.Объект на карте |
- Площадь дома
- 53.70 м2
- Площадь участка
- 5.74 сот.
- Дата обновления
- 06.05.2026
- Дата размещения
- 13.12.2025
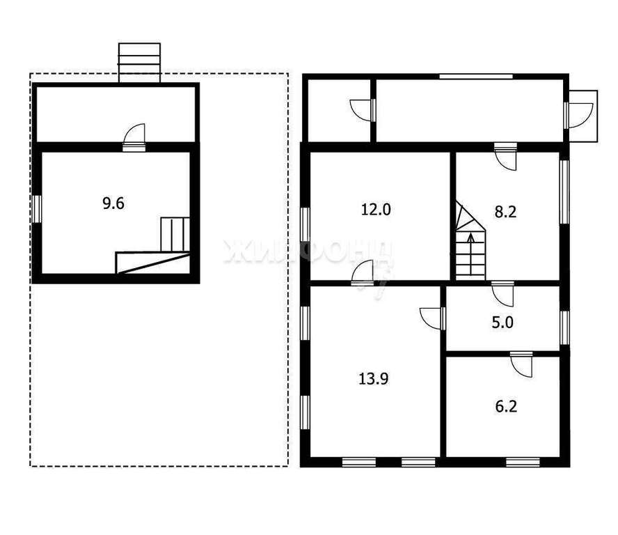
Дом по ул. Щорса. Общей площадью: 53.70 кв. м. Предлагаем к продаже отдельно стоящий дом в городе Искитиме.
Дом расположен в Индустриальном микрорайоне. Развитая инфраструктура. B шаговой доступности школа, детские сады, магазины, Храм, городской парк, электрички.
На первом этаже 2 комнаты , кухня.
Сан. узел в доме с душевой кабиной.
В подвальном помещении 1 комната с выходом в огород.
Отопление газ ! !
Вода скважина.
Слив септик новый.
Крыша новая металлопрофиль. .
Окна пластиковые.
Сан. узел в доме.
Есть банька, гараж. .
Земельный участок 6 соток.
А. Н Жилфонд предоставляет юридическое сопровождение.
При приобретении данного объекта покупатель оплачивает комиссию.
РАССМОТРИМ ОБМЕН НА 3 КОМНАТНУЮ КВАРТИРУ В ГОРОДЕ ИСКИТИМ. .
Возможен обмен на вашу недвижимость.
При звонке, пожалуйста, сообщите номер варианта -
JV008054159353
Дом расположен в Индустриальном микрорайоне. Развитая инфраструктура. B шаговой доступности школа, детские сады, магазины, Храм, городской парк, электрички.
На первом этаже 2 комнаты , кухня.
Сан. узел в доме с душевой кабиной.
В подвальном помещении 1 комната с выходом в огород.
Отопление газ ! !
Вода скважина.
Слив септик новый.
Крыша новая металлопрофиль. .
Окна пластиковые.
Сан. узел в доме.
Есть банька, гараж. .
Земельный участок 6 соток.
А. Н Жилфонд предоставляет юридическое сопровождение.
При приобретении данного объекта покупатель оплачивает комиссию.
РАССМОТРИМ ОБМЕН НА 3 КОМНАТНУЮ КВАРТИРУ В ГОРОДЕ ИСКИТИМ. .
Возможен обмен на вашу недвижимость.
При звонке, пожалуйста, сообщите номер варианта -
JV008054159353

















