Продажа дома, с.Береговое, Новая ул, Новосибирская область
- Регион
- Новосибирская область
| Адрес | с.Береговое, Новая улОбъект на карте |
- Площадь дома
- 61.30 м2
- Площадь участка
- 27.50 сот.
- Дата обновления
- 06.05.2026
- Дата размещения
- 13.12.2025
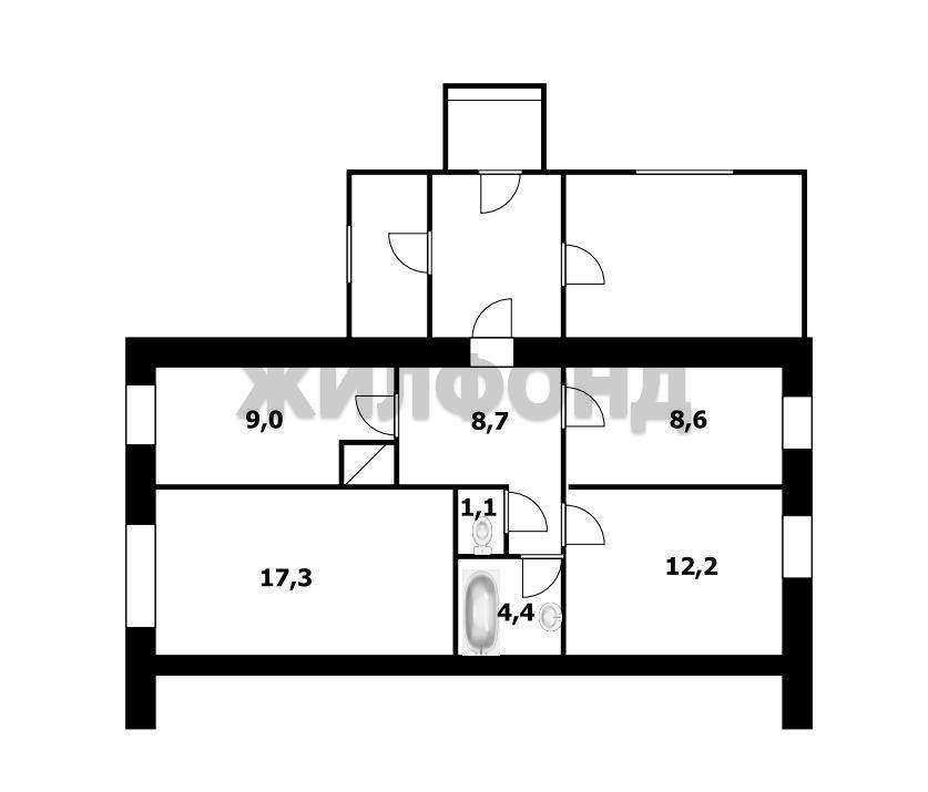
1/2 дома по ул. Новая. Общей площадью: 61.30 кв. м.
Отличный вариант для желающих жить на чистом воздухе ! Дом на 2 хозяина с огромным участком 27,5 соток. С. Береговое, улица Новая. Почтовый адрес присвоен, прописаться можно.
Живописное место, до Обского водохранилища 10 минут пешком, проезд в любое время. Все коммуникации заведены. Три комнаты, кухня, коридор , веранда, раздельный санузел в доме. Изолированная планировка, окна пластиковые, стены кирпич, огорожен капитальным забором . Имеются хоз. постройки. Отопление - печное, скоро будет газ.
Ухоженный участок, ровный, не топит. Коммунальные платежи небольшие. Развитая
инфраструктура - дет. сад, школьный автобус бесплатно возит детей в соседнее село
Боровое, магазины, новая мед. амбулатория, клуб, библиотека, все это в шаговой
доступности. С документами все в порядке, без обременений, быстрый выход на сделку, никто не живет, показ в любое время.
Возможен обмен на вашу недвижимость. Возможна продажа в рассрочку.
При звонке, пожалуйста, сообщите номер варианта -
JV008054187283
Отличный вариант для желающих жить на чистом воздухе ! Дом на 2 хозяина с огромным участком 27,5 соток. С. Береговое, улица Новая. Почтовый адрес присвоен, прописаться можно.
Живописное место, до Обского водохранилища 10 минут пешком, проезд в любое время. Все коммуникации заведены. Три комнаты, кухня, коридор , веранда, раздельный санузел в доме. Изолированная планировка, окна пластиковые, стены кирпич, огорожен капитальным забором . Имеются хоз. постройки. Отопление - печное, скоро будет газ.
Ухоженный участок, ровный, не топит. Коммунальные платежи небольшие. Развитая
инфраструктура - дет. сад, школьный автобус бесплатно возит детей в соседнее село
Боровое, магазины, новая мед. амбулатория, клуб, библиотека, все это в шаговой
доступности. С документами все в порядке, без обременений, быстрый выход на сделку, никто не живет, показ в любое время.
Возможен обмен на вашу недвижимость. Возможна продажа в рассрочку.
При звонке, пожалуйста, сообщите номер варианта -
JV008054187283





















