Продажа дома, с.Сенчанка, Зеленая ул, Новосибирская область
- Регион
- Новосибирская область
| Адрес | с.Сенчанка, Зеленая улОбъект на карте |
- Площадь дома
- 68.00 м2
- Площадь участка
- 16.00 сот.
- Дата обновления
- 06.05.2026
- Дата размещения
- 13.12.2025
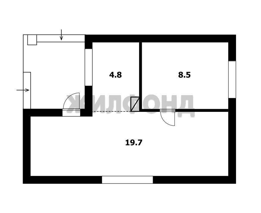
Дом по ул. Зеленая. Общей площадью: 68.00 кв. м.
Внимание! ! Редкий, очень редкий вариант! ! 3 отдельных жилых дома + земли неограниченное количество, так как за участком идут поля! ! ( в собственности по документам 16 соток )
МОЖНО ЖИТЬ В РАДОСТЬ БОЛЬШОЙ СЕМЬЕЙ! ! !
А теперь подробнее:
Дом 2-х этажный, построен в 2021 году.
Материал стен сибит обшитый облицовочным красивым ровненьким кирпичем.
Первый этаж большая гостиная с кухней и спальная комната.
Площадь 1- го этажа 34 кв. м., высота потолков 3 метра.
Второй этаж свободной планировки, комната 34 кв. м.
Воду в дом не заводили, но она есть центральная, можно провести.
Второй дом с баней, большая гостиная с кухней и отдельной жилой комнатой!
Третий дом тоже жилой, состоит из одной большой комнаты свободной планировки!
Баня, гараж, дровник, туалет, погреб - все есть и в отличном состоянии! !
На участке есть хороший парник и многолетние посадки!
Возможен обмен на вашу недвижимость. Возможна продажа в рассрочку.
При звонке, пожалуйста, сообщите номер варианта -
JV008054194073
Внимание! ! Редкий, очень редкий вариант! ! 3 отдельных жилых дома + земли неограниченное количество, так как за участком идут поля! ! ( в собственности по документам 16 соток )
МОЖНО ЖИТЬ В РАДОСТЬ БОЛЬШОЙ СЕМЬЕЙ! ! !
А теперь подробнее:
Дом 2-х этажный, построен в 2021 году.
Материал стен сибит обшитый облицовочным красивым ровненьким кирпичем.
Первый этаж большая гостиная с кухней и спальная комната.
Площадь 1- го этажа 34 кв. м., высота потолков 3 метра.
Второй этаж свободной планировки, комната 34 кв. м.
Воду в дом не заводили, но она есть центральная, можно провести.
Второй дом с баней, большая гостиная с кухней и отдельной жилой комнатой!
Третий дом тоже жилой, состоит из одной большой комнаты свободной планировки!
Баня, гараж, дровник, туалет, погреб - все есть и в отличном состоянии! !
На участке есть хороший парник и многолетние посадки!
Возможен обмен на вашу недвижимость. Возможна продажа в рассрочку.
При звонке, пожалуйста, сообщите номер варианта -
JV008054194073


























