Продажа дома, дачный п Кудряшовский, Лиговка ул, Новосибирская область
- Регион
- Новосибирская область
| Адрес | дачный п Кудряшовский, Лиговка улОбъект на карте |
- Площадь дома
- 642.90 м2
- Площадь участка
- 20.00 сот.
- Дата обновления
- 06.05.2026
- Дата размещения
- 13.12.2025
Коттедж по ул. Лиговка. Общей площадью: 642.90 кв. м.
РЕЗИДЕНЦИЯ В СОСНОВОМ БОРУ
Редкий формат частного владения высокого уровня рядом с Новосибирском.
В продаже объект, который сочетает качества, редко встречающиеся одновременно: приватное расположение среди вековых сосен, полноценный масштаб загородной резиденции, высокий уровень инженерии и непосредственную близость к городской инфраструктуре.
Дом площадью более 600 м расположен на участке 20 соток и создавался как пространство для долгосрочного комфортного проживания - с расчётом на качество строительства, инженерную надёжность и актуальность на годы вперёд.
Это четырёхуровневый кирпичный дом индивидуального проекта, где каждая деталь подчинена не внешнему эффекту, а реальному уровню жизни: продуманная архитектура, удобная логика помещений, высокий уровень исполнения и материалы, сохраняющие ценность во времени.
Материалы и оснащение, формирующие уровень объекта:
премиальная итальянская сантехника
натуральный паркет высокого класса и керамогранит рrеmium-сегмента
межкомнатные двери высокого интерьерного уровня
эксклюзивные световые решения
дровяной камин с круговым обзором
монолитная лестница с художественной ковкой
второй свет с высотой пространства более 7 метров
стены из цельного кирпича толщиной 60 см
потолки до 3,24 м.
Дом полностью готов к проживанию и не требует обязательных вложений после покупки.
Планировка дома организована так, чтобы обеспечивать комфорт как для повседневной жизни семьи, так и для полноценного приёма гостей:
Цокольный этаж - пространство свободного назначения для wеllnеss-зоны, сауны, отдыха или хранения.
1 этаж - гостиная с камином, кабинет, кухня-столовая, гостевая комната.
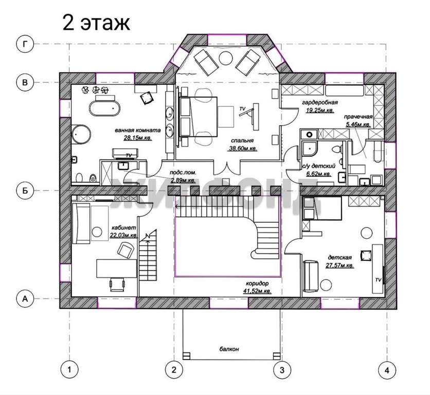
2 этаж - спальни, детская, гардеробные, санузлы, прачечная.
3 этаж - mаstеr-зона, спортивное пространство, балкон с видом на сосны.
Участок и дополнительные пространства:
взрослые сосны, плодовый сад, ухоженный газон
автоматический полив
терраса с зоной барбекю
тёплый гараж на 3 автомобиля
отдельная квартира для персонала площадью около 70 м.
Инженерные преимущества объекта:
центральный газ
собственная скважина с системой фильтрации
две независимые линии электроснабжения по 15 кВт
резервное питание
климат-контроль
вентиляция
видеонаблюдение
охранная система
элементы smаrt hоmе
Инвестиционный потенциал объекта.
Архитектура и внутренняя структура дома создают дополнительную ценность: объект сохраняет высокий потенциал дальнейшего функционального использования как представительская резиденция, закрытый частный проект высокого уровня, корпоративный формат или пространство премиального назначения без глубокой реконструкции.
При текущей стоимости строительства, инженерных решений и материалов подобный объект представляет собой не только комфортное частное владение, но и редкий актив, который трудно воспроизвести в аналогичном качестве и масштабе.
РЕЗИДЕНЦИЯ В СОСНОВОМ БОРУ
Редкий формат частного владения высокого уровня рядом с Новосибирском.
В продаже объект, который сочетает качества, редко встречающиеся одновременно: приватное расположение среди вековых сосен, полноценный масштаб загородной резиденции, высокий уровень инженерии и непосредственную близость к городской инфраструктуре.
Дом площадью более 600 м расположен на участке 20 соток и создавался как пространство для долгосрочного комфортного проживания - с расчётом на качество строительства, инженерную надёжность и актуальность на годы вперёд.
Это четырёхуровневый кирпичный дом индивидуального проекта, где каждая деталь подчинена не внешнему эффекту, а реальному уровню жизни: продуманная архитектура, удобная логика помещений, высокий уровень исполнения и материалы, сохраняющие ценность во времени.
Материалы и оснащение, формирующие уровень объекта:
премиальная итальянская сантехника
натуральный паркет высокого класса и керамогранит рrеmium-сегмента
межкомнатные двери высокого интерьерного уровня
эксклюзивные световые решения
дровяной камин с круговым обзором
монолитная лестница с художественной ковкой
второй свет с высотой пространства более 7 метров
стены из цельного кирпича толщиной 60 см
потолки до 3,24 м.
Дом полностью готов к проживанию и не требует обязательных вложений после покупки.
Планировка дома организована так, чтобы обеспечивать комфорт как для повседневной жизни семьи, так и для полноценного приёма гостей:
Цокольный этаж - пространство свободного назначения для wеllnеss-зоны, сауны, отдыха или хранения.
1 этаж - гостиная с камином, кабинет, кухня-столовая, гостевая комната.
2 этаж - спальни, детская, гардеробные, санузлы, прачечная.
3 этаж - mаstеr-зона, спортивное пространство, балкон с видом на сосны.
Участок и дополнительные пространства:
взрослые сосны, плодовый сад, ухоженный газон
автоматический полив
терраса с зоной барбекю
тёплый гараж на 3 автомобиля
отдельная квартира для персонала площадью около 70 м.
Инженерные преимущества объекта:
центральный газ
собственная скважина с системой фильтрации
две независимые линии электроснабжения по 15 кВт
резервное питание
климат-контроль
вентиляция
видеонаблюдение
охранная система
элементы smаrt hоmе
Инвестиционный потенциал объекта.
Архитектура и внутренняя структура дома создают дополнительную ценность: объект сохраняет высокий потенциал дальнейшего функционального использования как представительская резиденция, закрытый частный проект высокого уровня, корпоративный формат или пространство премиального назначения без глубокой реконструкции.
При текущей стоимости строительства, инженерных решений и материалов подобный объект представляет собой не только комфортное частное владение, но и редкий актив, который трудно воспроизвести в аналогичном качестве и масштабе.





















