Продажа дома, п Бибиха, Рябиновая ул, Новосибирская область
- Регион
- Новосибирская область
| Адрес | п Бибиха, Рябиновая улОбъект на карте |
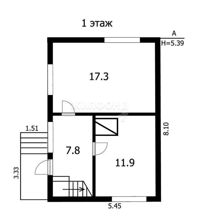
- Площадь дома
- 72.50 м2
- Площадь участка
- 4.31 сот.
- Дата обновления
- 06.05.2026
Дача по ул. Рябинова.
Дом и земля в собственности. Возможна прописка. Более 5 лет в собственности. 1 взрослый собственник.
Любимая и уютная дача ищет нового заботливого владельца! Добротный дом построен с любовью, здесь выросло не одно поколение детей. Русская печь классической кладки делает первый этаж пригодным для круглогодичного проживания. Ухоженная территория, рабочая баня (перестелен пол, печка термофор) , беседка, две кладовки для хранения садового инвентаря, новая теплица 3х4 м. 200 м до реки Обь, песчаный пляж, ягоды, грибы, ароматный сосновый бор. Транспортная доступность: маршрутка и теплоход! 40 минут от пл. Калинина. А главное - колодец с чистейшей питьевой водой (4 ЖБИ кольца) . Даже в городе эта вода в бутылках 3 месяца не меняет вкус. Дача находиться на территории СНТ Обские дали, но к нему не относится. Нет членских взносов. Платим только за свет в Кубовинский сельсовет и налог на землю (имущество) . При желании можно вступить в снт и провести поливочную воду. Но собственники 40 лет жили вне общества и колодца отлично хватало. Хотите уединения с природой? И сохранить городской комфорт? Тогда Вам сюда! - Прописка, обслуживание экстренными службами, детей возит школьный автобус в Кубовую, магазины работают круглый год.
Дороги зимой чистят, деревня жилая. Покажем в любое время, звоните!
Возможен обмен на вашу недвижимость. Возможна продажа в рассрочку.
При звонке, пожалуйста, сообщите номер варианта -
JV008054148572
Дом и земля в собственности. Возможна прописка. Более 5 лет в собственности. 1 взрослый собственник.
Любимая и уютная дача ищет нового заботливого владельца! Добротный дом построен с любовью, здесь выросло не одно поколение детей. Русская печь классической кладки делает первый этаж пригодным для круглогодичного проживания. Ухоженная территория, рабочая баня (перестелен пол, печка термофор) , беседка, две кладовки для хранения садового инвентаря, новая теплица 3х4 м. 200 м до реки Обь, песчаный пляж, ягоды, грибы, ароматный сосновый бор. Транспортная доступность: маршрутка и теплоход! 40 минут от пл. Калинина. А главное - колодец с чистейшей питьевой водой (4 ЖБИ кольца) . Даже в городе эта вода в бутылках 3 месяца не меняет вкус. Дача находиться на территории СНТ Обские дали, но к нему не относится. Нет членских взносов. Платим только за свет в Кубовинский сельсовет и налог на землю (имущество) . При желании можно вступить в снт и провести поливочную воду. Но собственники 40 лет жили вне общества и колодца отлично хватало. Хотите уединения с природой? И сохранить городской комфорт? Тогда Вам сюда! - Прописка, обслуживание экстренными службами, детей возит школьный автобус в Кубовую, магазины работают круглый год.
Дороги зимой чистят, деревня жилая. Покажем в любое время, звоните!
Возможен обмен на вашу недвижимость. Возможна продажа в рассрочку.
При звонке, пожалуйста, сообщите номер варианта -
JV008054148572















