Продажа дома, с.Юрты, Центральная ул, Новосибирская область
- Регион
- Новосибирская область
| Адрес | с.Юрты, Центральная улОбъект на карте |
- Площадь дома
- 51.00 м2
- Площадь участка
- 44.00 сот.
- Дата обновления
- 06.05.2026
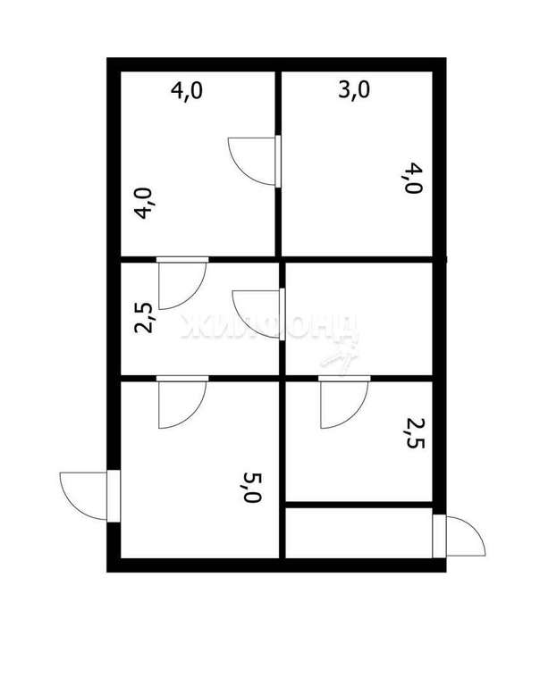
Дом по ул. Центральная. Общей площадью: 51.00 кв. м.
ОБРАТИТЕ ВНИМАНИЕ! ЧИСТАЯ ПРОДАЖА ДОМА 51 кв. на участке 44 сотки, который находится селе Юрты в 68 км от Тогучина по Ленинск-кузнецкой трассе(131 км от Новосибирска) . Категория земли -ЗЕМЛИ НАСЕЛЕННЫХ ПУНКТОВ Подходит под ипотеку и МАТКАП, имеются хозяйственные постройки . Все коммуникации -центральная вода , теплый туалет, бойлер с горячей водой, электричество, отопление печное . По сути -КВАРТИРА НА ЗЕМЛЕ.
Рядом школа, детский садик и Дом культуры. Для любителей активного образа жизни в окрестностях дома есть Парк. Для тех, кто предпочитает спокойный отдых, в окрестностях дома есть озеро и реки, где можно рыбачить или просто наслаждаться красивыми пейзажам и озеро - все для любителей рыбалки и охоты.
Вы сможете наслаждаться красивой природой и проводить время на свежем воздухе. Также в непосредственной близости находятся горнолыжные курорты(лыжная база `Пихтовый гребень` и база отдыха `Танай`) , где вы сможете зимой кататься на лыжах и сноуборде. Для автовладельцев предусмотрена парковка прямо у дома. .
Это отличное предложение для тех, кто хочет приобрести надежное и уютное жилье в живописном месте с развитой инфраструктурой. Не упустите свой шанс стать владельцем этого замечательного дома ! Звоните прямо сейчас и мы с удовольствием организуем для вас просмотр этого уникального объекта! КЛЮЧИ В АГЕНТСТВЕ!
Дополнительно оплачивается комиссия покупателем.
Возможен обмен на вашу недвижимость. Возможна продажа в рассрочку.
При звонке, пожалуйста, сообщите номер варианта -
JV008054166425
ОБРАТИТЕ ВНИМАНИЕ! ЧИСТАЯ ПРОДАЖА ДОМА 51 кв. на участке 44 сотки, который находится селе Юрты в 68 км от Тогучина по Ленинск-кузнецкой трассе(131 км от Новосибирска) . Категория земли -ЗЕМЛИ НАСЕЛЕННЫХ ПУНКТОВ Подходит под ипотеку и МАТКАП, имеются хозяйственные постройки . Все коммуникации -центральная вода , теплый туалет, бойлер с горячей водой, электричество, отопление печное . По сути -КВАРТИРА НА ЗЕМЛЕ.
Рядом школа, детский садик и Дом культуры. Для любителей активного образа жизни в окрестностях дома есть Парк. Для тех, кто предпочитает спокойный отдых, в окрестностях дома есть озеро и реки, где можно рыбачить или просто наслаждаться красивыми пейзажам и озеро - все для любителей рыбалки и охоты.
Вы сможете наслаждаться красивой природой и проводить время на свежем воздухе. Также в непосредственной близости находятся горнолыжные курорты(лыжная база `Пихтовый гребень` и база отдыха `Танай`) , где вы сможете зимой кататься на лыжах и сноуборде. Для автовладельцев предусмотрена парковка прямо у дома. .
Это отличное предложение для тех, кто хочет приобрести надежное и уютное жилье в живописном месте с развитой инфраструктурой. Не упустите свой шанс стать владельцем этого замечательного дома ! Звоните прямо сейчас и мы с удовольствием организуем для вас просмотр этого уникального объекта! КЛЮЧИ В АГЕНТСТВЕ!
Дополнительно оплачивается комиссия покупателем.
Возможен обмен на вашу недвижимость. Возможна продажа в рассрочку.
При звонке, пожалуйста, сообщите номер варианта -
JV008054166425





















