Продажа 2-комнатной квартиры, Черепаново, Цветковского пер., 7, Новосибирская область
- Регион
- Новосибирская область
| Адрес | Черепаново, Цветковского пер., 7Объект на карте |
- Тип дома
- Панельный
- Этаж
- 1 этаж в 1-этажном доме
- Кол-во комнат
- 2
- Общая площадь
- 42.20 м2
- Жилая площадь
- 30.50 м2
- Площадь кухни
- 8.50 м2
- Дата обновления
- 28.05.2026
- Дата размещения
- 13.12.2025
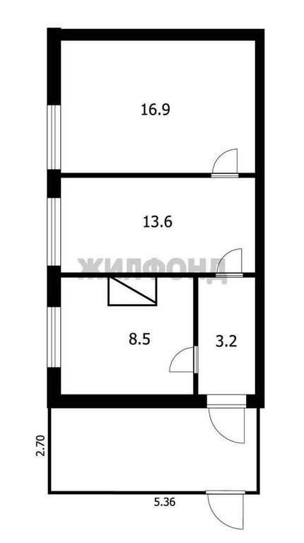
2 комн. квартира по ул. Цветковского. Общей площадью: 42.20 кв. м.
В продаже 2х комнатная квартира на земле!
Две просторные комнаты, площадью 16,9 и 13,6 квадратных метра, создают ощущение свободы и комфорта. Здесь достаточно места для реализации любых дизайнерских решений и создания уютной атмосферы.
Просторная кухня, площадью 8,5 квадратных метра, станет настоящим центром притяжения для всей семьи. Здесь вы сможете с удовольствием готовить любимые блюда и проводить время в приятной компании.
Двор, надежно закрытый навесом с металлической крышей, защитит вас от непогоды. Шиферная кровля дома обеспечивает надежность и долговечность.
Материал стен бетонные блоки, что гарантирует тепло и прочность конструкции. Зимой в доме тепло благодаря печному-водяному отоплению. Летняя прохлада сохранится за счет толстых стен.
Год постройки дома 1976г.
Во дворе расположен колодец с питьевой водой источник чистой и свежей воды прямо у вас под рукой.
К квартире прилагается небольшой участок земли, где вы сможете воплотить свои мечты о садоводстве и огородничестве.
Небольшой, но ухоженный огород порадует свежей зеленью и овощами. Здесь вы сможете вырастить свой собственный урожай.
На участке имеются санузел, добротная баня и хозпостройки все необходимое для комфортной жизни.
Возможен обмен на вашу недвижимость. Возможна продажа в рассрочку.
При звонке, пожалуйста, сообщите номер варианта -
JV002054172593
В продаже 2х комнатная квартира на земле!
Две просторные комнаты, площадью 16,9 и 13,6 квадратных метра, создают ощущение свободы и комфорта. Здесь достаточно места для реализации любых дизайнерских решений и создания уютной атмосферы.
Просторная кухня, площадью 8,5 квадратных метра, станет настоящим центром притяжения для всей семьи. Здесь вы сможете с удовольствием готовить любимые блюда и проводить время в приятной компании.
Двор, надежно закрытый навесом с металлической крышей, защитит вас от непогоды. Шиферная кровля дома обеспечивает надежность и долговечность.
Материал стен бетонные блоки, что гарантирует тепло и прочность конструкции. Зимой в доме тепло благодаря печному-водяному отоплению. Летняя прохлада сохранится за счет толстых стен.
Год постройки дома 1976г.
Во дворе расположен колодец с питьевой водой источник чистой и свежей воды прямо у вас под рукой.
К квартире прилагается небольшой участок земли, где вы сможете воплотить свои мечты о садоводстве и огородничестве.
Небольшой, но ухоженный огород порадует свежей зеленью и овощами. Здесь вы сможете вырастить свой собственный урожай.
На участке имеются санузел, добротная баня и хозпостройки все необходимое для комфортной жизни.
Возможен обмен на вашу недвижимость. Возможна продажа в рассрочку.
При звонке, пожалуйста, сообщите номер варианта -
JV002054172593












