Продажа 2-комнатной квартиры, с.Боровое, Школьная ул, 6, Новосибирская область
- Регион
- Новосибирская область
| Адрес | с.Боровое, Школьная ул, 6Объект на карте |
- Тип дома
- Панельный
- Этаж
- 2 этаж в 2-этажном доме
- Кол-во комнат
- 2
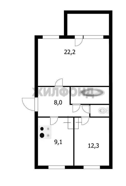
- Общая площадь
- 58.70 м2
- Жилая площадь
- 34.50 м2
- Площадь кухни
- 9.10 м2
- Дата обновления
- 17.04.2026
- Дата размещения
- 31.01.2026
2 комн. квартира по ул. Школьная. Общей площадью: 58.70 кв. м.
Хотите жить рядом с Новосибирским водохранилищем и в окружении сосен- это Ваш вариант.
Дом расположен в нескольких метрах от школы и детского сада.
Квартира улучшенной планировки с изолированными комнатами. Состояние хорошее. Остается кухонный гарнитур, мебель в прихожей, шкаф. Есть подвальное помещение.
Возможен обмен на вашу недвижимость. Возможна продажа в рассрочку.
При звонке, пожалуйста, сообщите номер варианта -
JV002054155098
Хотите жить рядом с Новосибирским водохранилищем и в окружении сосен- это Ваш вариант.
Дом расположен в нескольких метрах от школы и детского сада.
Квартира улучшенной планировки с изолированными комнатами. Состояние хорошее. Остается кухонный гарнитур, мебель в прихожей, шкаф. Есть подвальное помещение.
Возможен обмен на вашу недвижимость. Возможна продажа в рассрочку.
При звонке, пожалуйста, сообщите номер варианта -
JV002054155098

























