Продажа 1-комнатной квартиры, с.Новокремлевское, Маяковского ул, 12, Новосибирская область
- Регион
- Новосибирская область
| Адрес | с.Новокремлевское, Маяковского ул, 12Объект на карте |
- Тип дома
- Панельный
- Этаж
- 2 этаж в 2-этажном доме
- Кол-во комнат
- 1
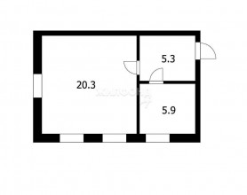
- Общая площадь
- 31.50 м2
- Жилая площадь
- 20.30 м2
- Площадь кухни
- 6.00 м2
- Дата обновления
- 13.05.2026
1 комн. квартира по ул. Маяковского. Общей площадью: 31.50 кв. м.
Село Новокремлевское, Коченевского района, находится в 70 км от Новосибирска. Поселок красивый, ухоженный, школа и детский сад, магазины, действующий клуб! Много новых домов, дороги в отличном состоянии.
40 минут на электричке и вы в Коченево!
От Коченево 21 км, постоянный рейсовый автобус до Коченево!
Дом в очень хорошем состоянии-новая крыша- металлопрофиль. Отличные, воспитанные соседи.
Центральное отопление, холодная вода, одна сотка земли рядом- можно поставить теплую баньку! Посадить цветы и любоваться закатами.
Место отличное- село развивается. Много новых, красивых домов.
Приезжайте на просмотр- вам очень понравится
Возможен обмен на вашу недвижимость. Возможна продажа в рассрочку.
При звонке, пожалуйста, сообщите номер варианта -
JV001054175882
Село Новокремлевское, Коченевского района, находится в 70 км от Новосибирска. Поселок красивый, ухоженный, школа и детский сад, магазины, действующий клуб! Много новых домов, дороги в отличном состоянии.
40 минут на электричке и вы в Коченево!
От Коченево 21 км, постоянный рейсовый автобус до Коченево!
Дом в очень хорошем состоянии-новая крыша- металлопрофиль. Отличные, воспитанные соседи.
Центральное отопление, холодная вода, одна сотка земли рядом- можно поставить теплую баньку! Посадить цветы и любоваться закатами.
Место отличное- село развивается. Много новых, красивых домов.
Приезжайте на просмотр- вам очень понравится
Возможен обмен на вашу недвижимость. Возможна продажа в рассрочку.
При звонке, пожалуйста, сообщите номер варианта -
JV001054175882








