Продажа 2-комнатной квартиры, Карасук, Щорса ул., 140, Новосибирская область
- Регион
- Новосибирская область
| Адрес | Карасук, Щорса ул., 140Объект на карте |
- Тип дома
- Панельный
- Этаж
- 1 этаж в 2-этажном доме
- Кол-во комнат
- 2
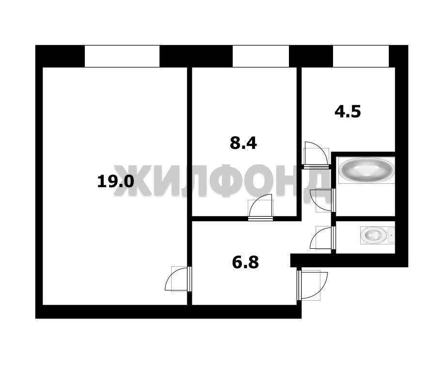
- Общая площадь
- 42.10 м2
- Жилая площадь
- 24.70 м2
- Площадь кухни
- 4.50 м2
- Дата обновления
- 06.05.2026
- Дата размещения
- 27.02.2026
2 комн. квартира по ул. Щорса. Общей площадью: 42.10 кв. м. Продается 2-х комнатная квартира по ул. Щорса 140.
Площадь 42 кв. м.
Квартира находится на комфортном первом этаже!
Комнаты изолированные, совмещенный санузел.
В квартире свежий ремонт, очень теплая!
Установлена качественная входная металлическая дверь, окна ПВХ, натяжные потолки.
Хорошие соседи, подъезд очень тихий. Во дворе детская игровая площадка.
В шаговой доступности Карасукский педагогический колледж, школа, д. сад, магазины, аптека, автобусные остановки.
Совершеннолетние собственники, долгов и обременений нет, быстрый выход на сделку.
Для организации показа просьба звонить заранее.
Сотрудничество с агентством недвижимости, обеспечивает Вам юридическую прозрачность сделки.
Возможен обмен на вашу недвижимость.
При звонке, пожалуйста, сообщите номер варианта -
JV002054163161
Площадь 42 кв. м.
Квартира находится на комфортном первом этаже!
Комнаты изолированные, совмещенный санузел.
В квартире свежий ремонт, очень теплая!
Установлена качественная входная металлическая дверь, окна ПВХ, натяжные потолки.
Хорошие соседи, подъезд очень тихий. Во дворе детская игровая площадка.
В шаговой доступности Карасукский педагогический колледж, школа, д. сад, магазины, аптека, автобусные остановки.
Совершеннолетние собственники, долгов и обременений нет, быстрый выход на сделку.
Для организации показа просьба звонить заранее.
Сотрудничество с агентством недвижимости, обеспечивает Вам юридическую прозрачность сделки.
Возможен обмен на вашу недвижимость.
При звонке, пожалуйста, сообщите номер варианта -
JV002054163161










